Un vehículo de esperanza y parques de arena distinguidos por la Bienal

Disponible en:Medellín9 nov. 2018

Agencia de Noticias UPB – Medellín. La Facultad de Arquitectura obtuvo el Primer Lugar en la categoría Arquitectura efímera y de interiores, en la Bienal de Arquitectura y Urbanismo,  y una mención de honor la categoría Arquitectura efímera y de interiores, gracias a los proyectos de docentes y egresados de la Universidad.

El Primer Lugar se lo llevó A5 Arquitectura, de la cual hacen parte el arquitecto y egresado Tomás Vega Trujillo y su colega Camilo Ramírez Gallego, los responsables de dar vida a este proyecto en apoyo a la labor del padre Felipe Escobar, quienes además contaron con la colaboración de la empresa Obras y Montajes.

 
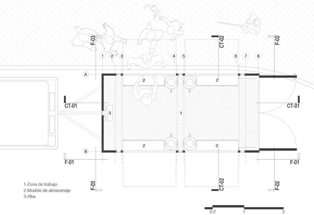
Planos Capilla Móvil. Créditos: A5 Arquitectura

Planos Capilla Móvil. Créditos: A5 Arquitectura

De acuerdo con Camilo Ramírez, este proyecto tuvo como punto de partida el objetivo de ayudar a potencializar y fortalecer la labor humanitaria que realiza el padre Felipe Escobar de llevar esperanza a los habitantes de la calle y al mismo tiempo brindarles alimentos, una labor que él viene haciendo desde hace muchos años atrás.

Él llega a nosotros y lo que hacemos es crear un proyecto, que en este caso su nombre es la ´Capilla Móvil´, que conceptualmente hablando es cambiar la ecuación y no esperar a que las personas lleguen, sino la Iglesia llegar a las personas, básicamente ese es el propósito del proyecto”, declara el arquitecto. Este tiene la forma de una capilla, lo cual ayuda como presencia simbólica frente a las personas, el cual se despliega y se abre para funcionar como un lugar de encuentro y para repartir los alimentos.

Tomás Vega relata que este proyecto llegó a la oficina como una idea de fortalecimiento para la labor que el padre venía realizando para llevar apoyo emocional y esperanza a poblaciones vulnerables; a partir de este encargo se comenzó con el proceso de diseño en el que intentaron materializar las especificaciones y necesidades que tenía el padre, por lo que determinaron dos frentes de trabajo, “un tema más funcional, vinculado al confort, a la seguridad, a la capacidad de alimentar a estas personas; y un tema muy conceptual en el que se intentaba simbolizar a la iglesia, de manera que el proyecto tenía que responder a esas dos necesidades”, comenta.

La idea de un tráiler-capilla surge en el 2014 y la propuesta fue bien recibida, sin embargo, solo hasta el 2016 el proyecto comienza su etapa de maduración. Al entregar el diseño, desde la oficina se hizo parte de la gestión “empieza un proceso muy interesante en el que hicimos parte de toda la gestión, y nos interesó mucho desde el principio involucrarnos, entramos nosotros a entender que la relación con el padre no era únicamente como de cliente-arquitectos, sino que nos vinculamos para llevar el proyecto a la realidad”, relata Tomás Vega.

Tanto Tomás como Camilo ayudaron al padre a conseguir proveedores, y con algunos de sus clientes y amigos consiguieron recursos; además el padre y sus voluntarios también se unieron a la tarea de materializar el proyecto, con lo que logran comenzar la etapa de construcción, primero del tráiler y luego de la estructura, para finalmente poner el proyecto el marcha para la venida del Papa.

 Ya lleva más de un año circulando por la ciudad, “nosotros hemos hecho el recorrido con el padre, y con la oportunidad de presentarlo a la Bienal, hicimos un proceso de documentarlo y hacer registro fotográfico, del cual el fotógrafo Alejandro Arango también hizo parte de forma voluntaria, con el fin tener una proyección gráfica más editorial para el premio”, recuerda el egresado.

 
Planta general abierta, Capilla Móvil. Créditos: A5 Arquitectura

Planta general abierta, Capilla Móvil. Créditos: A5 Arquitectura

La capilla se compone de elementos básicos, el primero en construirse fue un tráiler, con el cual se tuvo en cuenta que iba a parar en algunos puntos de la ciudad por lo que debía ser estable, además se revisó la normatividad del Tránsito para saber cuáles eran las dimensiones permitidas. Este tiene una estructura metálica con base en un sistema de costillas que consta de tubos cuadrados, así mismo cuenta con un sistema de pieles o cerramientos de paneles termo acústicos muy livianos, por la condición topográfica de la ciudad y la necesidad de aislar el calor.

Los paneles son termo acústicos con un interior de poliuretano y láminas metálicas en el exterior, ´tipo sándwich´, además de un sistema tipo grietas que es como una penumbra al interior y que por la noche cuando la capilla está encendida tiene la cualidad de ser una ´luz en la oscuridad del Centro´. Este sistema se hizo con acrílicos, ya que es un material más flexible y que se quiebra con menos facilidad que el vidrio, lo que ayuda muy bien a la condición del móvil del proyecto”, explica Tomás Vega.

Camilo Ramírez explica que la capilla hace una ruta de cinco estaciones en el Centro de la ciudad, para cubrir diferentes poblaciones vulnerables, esta comienza en el Colegio San Lorenzo del Barrio Niquitao, un lugar donde hay niños indígenas desplazados por la violencia; luego va a un Inquilinato ubicado por la Avenida Oriental con San Juan, en tercer lugar se dirige a la zona occidental con San Juan, donde se encuentran varios sitios de prostitución. Así mismo, para él, este proyecto serviría de ejemplo para replicar en varias ciudades por las características del formato.

El recorrido continúa hacia la estación Prado donde el padre se reúne con los habitantes de calle y culmina en la Avenida de Greiff llegando a la Central Minorista; en todos sus recorridos el padre cuenta con la compañía de jóvenes voluntarios, a los cuales también aprovecha para mostrarles la realidad “desde el otro lado” y los diferentes estados del abandono a la calle con la esperanza de que estos lo tomen como una lección y no caigan en la calle.

“En cuanto a la labor del padre, él habla mucho de que en el recorrido uno va viendo los diferentes estados de las personas que están en la drogadicción, en estado de abandono o de desplazamiento; en esa condición de calle ellos tienen como unas etapas, y parte de la labor del padre es tratar de que las personas que todavía están en etapas muy iniciales no lleguen a la parte más crítica, entonces por esto él los vincula mucho al proceso”, aclara Tomás Vega.

 
CAPILLA MÓVIL

Capilla Móvil. Autor: Alejandro Arango

La financiación del proyecto necesitó un trabajo de gestión de recursos, unión de voluntades y personas con ganas de ayudar. “El costo está ligado al aporte voluntario de personas, aquí participaron personas que el padre invitó, que aportaron recursos, así como los contratistas Obras y Montajes que hicieron la estructura metálica de todo el proyecto y fueron un pilar importante en su construcción”, comenta el arquitecto Camilo.

De acuerdo con Tomás Vega, “la Capilla Móvil ha sido para nosotros como oficina un proyecto que nos ha brindado como mucha alegría porque nos permitió acercarnos desde lo que nosotros hacemos, que somos una oficina que generalmente trabajamos en el ámbito privado, a las realidades sociales y a proyectos que para nosotros son muy distintos y que lo llenan a uno de mucha alegría y de muchas ganas de seguir trabajando y hacer las cosas bien”.

Cuando uno sale a hacer el recorrido con el padre, se da cuenta de que tiene un impacto muy grande sobre estas poblaciones; y en segunda instancia, el reconocimiento de la Bienal para nosotros también es un gran honor y una gran alegría poder haber participado en el premio y salir ganadores. Yo creo que en resumen, la Capilla Móvil ha sido un proyecto que nos han brindado muchas ganas de seguir trabajando y seguirnos vinculando a proyectos como de esta índole”, afirma el egresado.

Luego del triunfo en la Bienal, los arquitectos recibieron la propuesta del padre Felipe Escobar para construir la “Barbería Móvil”, una barbería en bicicleta para los habitantes de calle, que han perdido el reconocimiento físico de sí mismos; “parte de lo que quiere el padre es motilarlos, afeitarlos y trabajarles desde su parte estética corporal para que se reconozcan mejor con los otros y puedan mejorar su estilo de vida estando en esa condición tan difícil”, concluye Tomás Vega.

Finalmente, para Camilo Ramírez, este proyecto les aporta como profesionales, ya que es “darnos cuenta de la importancia que tenemos nosotros como arquitectos en la sociedad y las posibilidades que tenemos de ayudar a transformar esas realidades, algo muy gratificante y que nos ha ayudado a crecer mucho a nosotros, desde lo personal y como empresa”.

 
PARQUES DE ARENA

Diseño Parques de Arena

La Bienal de Arquitectura y Urbanismo, también otorgó  una mención de honor en la categoría Arquitectura efímera y de interiores al proyecto Parques de Arena, otra iniciativa de docentes UPB, una propuesta de intervención en uno de los barrios que ha sido referente de la transformación urbana de Medellín, es decir, Moravia.

Esta obra diseñada por los arquitectos Édgar Mazo y Sebastián Mejía contó con la participación de las arquitectas Sara Arteaga y Nancy Acevedo, entre otros miembros del Laboratorio de Arquitectura y Paisaje, un espacio para la investigación, la experimentación y el análisis de la mano de expertos en el tema. El propósito del proyecto era garantizar un sitio de diversión e interacción para los niños y adultos del sector que convergen en este terreno.

 
Parques de Arena

Parques de Arena

Por. Melissa Jaramillo Sierra y Michelle Acevedo Vélez. Agencia de Noticias UPB

Logo Universidad Pontificia Bolivariana

Resolución 020198 del 31 de octubre de 2024 por un periodo de 8 años

Universidad sujeta a inspección y vigilancia por el Ministerio de Educación Nacional.
Otorgado por el Ministerio de Educación Nacional. Nit UPB: 890.902.922-6. Todos los derechos reservados